(House) (Living room with ocean view)
I recently visited a beautiful Japanese kominka (traditional Japanese house,古民家) in Atami with
a business parter who actually renovated into the perfect condition.
The house was build only in 2017 but it used the old timbers from a century-old house in Nagano prefecture.
The current owner dismantled an old house in Nagano and transferred to Atami(熱海)and restored it completely.
Here is the traditional Japanese style house and how it is restored.
Property
It sits in Atami in Shizuoka prefecture.
It has a great access; only 2 hours away by car from central Tokyo and about 80 km from Mt.Fuji.
It is the ocean view house where you can enjoy the sea breeze and spectacular Pacific Ocean and the Sagami Bay.
(See the map below)
Located on a high ground in good sun and good ventilation.
Land over 10,000 m2, building over 270 m2.
Front road 7.6 m and 3 parking lots (more space is available for parking lot)
The beautiful unique Japanese old folk house (called kominka ‘古民家’) sits at the foot of the Izu peninsula.
The grand waterfront house originally stayed in a family for more than 90 years in the mountain side of Iiyama city in Nagano prefecture, and it has been well preserved.

(Map)

(Ocean view from the house)
The current owner fell in love with the house (it was in Nagano) and purchased only building from a previous owner and dismantled the entire house.
And the owner restored it completely in Atami using the woods from other kominka. The weather in Atami is milder than
Nagano. It is now facing the ocean view of Pacific Ocean.
It is being sold with natural onsen (hot springs) bath where you can relish beautiful ocean from the bath tub reading a book.

(traditional Japanese irori fireplace)
When you step inside the house, the large Japanese entry foyer and living room features flooring, an antique Japanese style columns, Japanese irori fireplace.
The Living room has a Japanese-designed old woods surround.
The living room has a very high ceiling with traditional Japanese beams.
The property is not zoned for any particular use, so the next owner could add additional buildings.

(Onsen (hot springs) with ocean view)
Stats
The 273 m2 house has 5 bedrooms, 2 bathrooms and three partial bathrooms. It sits on a 10,169 m2 lot on the hill.
Amenities
The amenities include two onsen (natural hot spring) baths (one is outside on the terrace) , Japanese irori fireplace and solid kaede (maple tree) timber table.
Others
The property currently does not have the hotel license to operate as a hotel or a private lodging house (Airbnb) but
the license can be applied with some additional renovation.
(modern Japanese washlet Toilet)
(High ceiling)
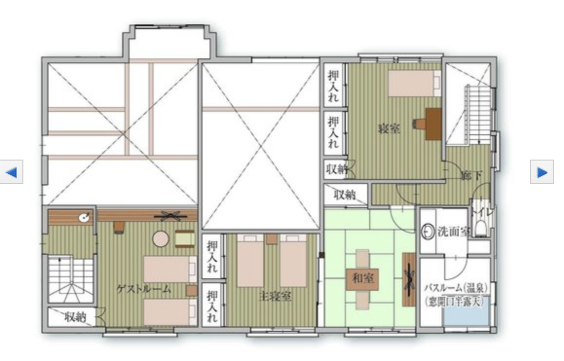
Floor plan 1F Floor plan 2F
Listing Price : 210 million yen (About U$2.1 million)
How it is dismantled and transferred
Original old houses (they are sometimes over 100 years old)
↓


Process 1 : Dismantling old houses with care
↓
Process 2 : Sawing up logs and fine-tuning by the craft-man with special skills
Other Helpful Articles About Kominka
Are you interested in buying kominka (traditional Japanese folk house, 古民家)in Japan ?: Tips for buying and renovating kominka
You don’t miss out this matchless property ?
For more details, please let us know via contact us.
We will start our service as soon as we hear from you.
Our Consultation Service
Spot consultation is available for those who are interested in buying an old Japanese property.
Spot consultation fee starts from 50,000 yen per two hours (plus tax). Consultation over Internet telephone is possible for those who are distant from Tokyo.
If you are seriously interested in buying akiya, please contact us. Consultation fee starts from 50,000 yen per two hours (plus tax). We provide the following consulting service for akiya investment as well.
1) Akiya search service
100,000 yen (plus tax) per project. We will look for an appropriate akiya for you.
It requires time consuming process.
Finding a good akiya is not as easy as you might think.
If you buy a wrong property in a wrong location, your investment could be a disaster.
We will not search akiya for free.
If you are seriously interested in buying a Japanese old house, please contact us.Toshihiko Yamamoto
Real estate investing consultant and author.
Founder of Yamamoto Property Advisory in Tokyo.
International property Investment consultant and licensed
real estate broker (Japan).
He serves the foreign companies and individuals to buy and sell
the real estates in Japan as well as own homes.
He holds a Bachelor’s degree in Economics from
Osaka Prefecture University in Japan
and an MBA from Bond University in Australia
Toshihiko’s book, “The Savvy Foreign Investor’s Guide to Japanese Properties: How to Expertly Buy, Manage and Sell Real Estate in Japan”is now out on Amazon, iBooks (iTunes, Apple) and Google Play.
About the book
Amazon.com Link
















